Designing a Breakfast Built-In

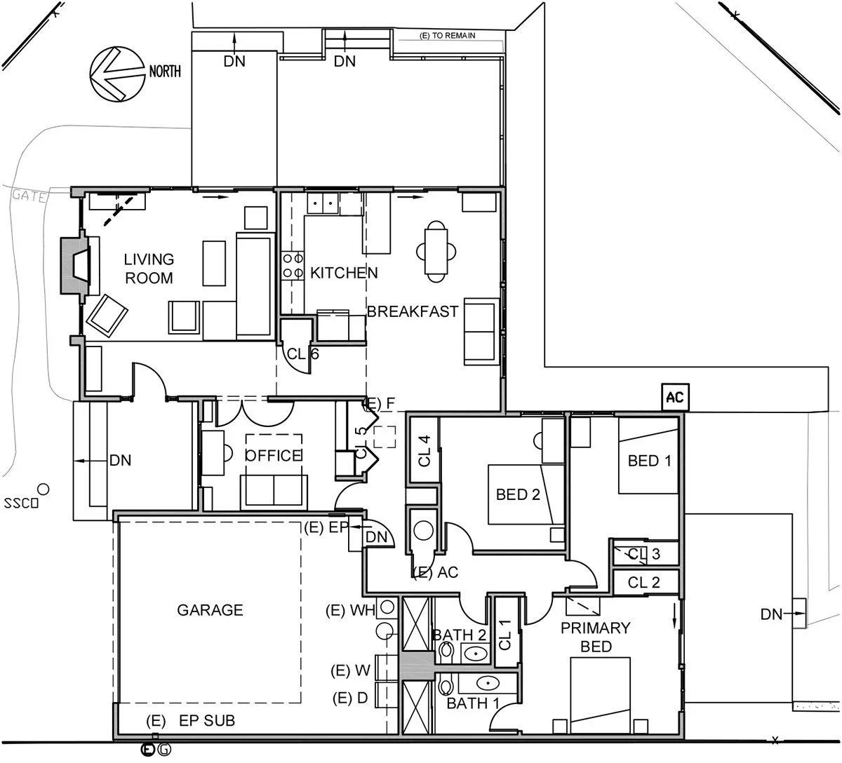
Builtins can add storage and beauty to a home, a win win! This home needed more storage.  A long wall adjacent to the kitchen and the garage entry was the perfect place to add it. Located along the daily path through the house, it was a natural spot to store everyday items, pantry and kitchen overflow, and things coming in from the garage.

What should it be: modular units, a furniture piece, or custom cabinetry?

The Construction Method

For a modern look, a custom built-in was the right solution. It could align with the wall edge and the adjacent ceiling creating an integrated appearance.

However, this was an existing space, where nothing is flat or straight. Achieving that fitted, modern look would require a skilled installer that would spend time adjusting the cabinetry to achieve the look we wanted.

It would also be a workhorse getting lots of use. Durability mattered, so it required a millworker who could both fabricate and install the cabinetry.

A rough sketch was enough to discuss the concept with several vendors.

The Design

The design evolved with these discussions. 

First, the base cabinets stopped at three feet high, aligning with the height of the kitchen countertops to visually tie in with the kitchen.

Next, I revised the layout to include three cabinets for narrower drawers to function better, and an odd number of cabinets placing one in the center. A classic design strategy to create a focal point in the center.

The center base cabinet became a bank of drawers for linens and other household items, while the outer cabinets had doors for easy access for toy storage for little ones.

Elevation

The Materials

For the doors and drawer fronts were flat panels in steamed beech.

This option turned out to be the most economical with a beautiful light appearance.

The Finish

At the showroom, I reviewed several stain options and was immediately drawn to the lightness of the clear finish.

Because the cabinet sits in a bright, airy room, I wanted the wood to remain light so the installation wouldn’t feel heavy or imposing.

I brought a sample home and looked at it alongside the flooring and other materials to confirm the choice. Some stains matched the flooring more closely, but in the end the clear finish worked well with the surrounding materials and it was the one I loved most.

A simple stainless steel bar pull did the trick. I considered various Emtek options but the Home Depot price was right.

The Install

All of this design work would have been for nothing if it wasn’t fabricated and installed correctly. The piece was beautifully built, and the installers spent the entire day carefully scribing and adjusting it to fit a space where the walls were far from straight. Achieving a clean, minimal result in an existing home requires a high level of craftsmanship, even though the final result makes it look effortless.

Details were included, such as aligning the wood grain vertically from the doors to the drawer fronts.

Choosing the right trade partner was critical to this project. While semi-custom cabinetry without installation would have been more cost-effective, it would not have achieved the same level of quality.

Design is Iterative

It often begins with a problem or an idea. From there, you define the function, look, and determine what the schedule and budget allow.

The design evolves through that process. Often, the final solution is different from the initial idea and that’s the fun part, leading you somewhere better than where you started.

Next
Next

What to include in your Home Construction Project